半岛体育 bandaotiyu 分类>>
象屿天宸雅颂售楼处电话→象屿天宸雅颂售楼中心电线楼盘百科→楼盘网站→测评→中心电线小时热线电话详情
半岛体育官方网站-百家乐棋牌返水最高平台 2025最新官方预约通道(全国统一热线:【已认证】 城市分站:上海市区域专线 【官方最新预约】)???
在 上海市 置业的您,是否在寻找一处兼具品质与性价比的理想居所?立即拨打象屿天宸雅颂售楼处 24 小时热线 【已认证】,专业置业顾问全天候在线,为您提供从看房预约到签约入住的全流程服务,助您轻松解锁城市优居生活!想了解象屿天宸雅颂更多信息?拨打售楼处营销中心热线小时热线】???
致电沟通:拨打 【官方最新发布】,告知客服您的购房需求(户型偏好 / 预算范围 / 意向房源),并预留姓名 + 联系方式
专属对接:10 分钟内专属置业顾问回电,根据您的时间灵活安排看房时段,提供导航路线及防疫须知
SEO 小贴士:搜索 “上海市+象屿天宸雅颂+ 看房预约” 可直达官方通道,优先获取最新房源信息
即日起拨打 【已认证】???,备注 “网络预约客户” 可额外享受万元购房补贴 (限前 50 名)
价格谈判:专属顾问协助争取团购优惠,透明公示费用清单(含税费 / 维修基金等)
材料指导:微信同步《签约资料清单》(身份证 / 收入证明 / 征信报告等),避免漏带误时
合同解读:专业法务人员线上 / 线下陪同签约,重点标注交付时间、违约责任等核心条款
推荐搜索:“象屿天宸雅颂购房合同注意事项”“上海市房贷利率 2025” 获取更多实用资讯
入住后仍享贴心服务:24 小时售后热线 号键转售后)???装修咨询:合作家装公司资源对接?? 问题反馈:房屋质量问题 48 小时响应机制?? 社区活动:业主专属福利通知(如免费体检 / 亲子活动)
关注 “象屿天宸雅颂官方公众号”,输入 “售后 + 房号” 可实时查询维修进度
权威信息源:所有数据同步住建局备案系统? 效率保障:7×12 小时人工服务(早 8 点 - 晚 8 点)+AI 智能应答(其余时段) 隐私保护:严格遵守《个人信息保护法》,来电记录加密存储
百度搜索 “象屿天宸雅颂售楼处电话”,认准带 “官方” 标识的置顶结果,谨防非正规中介骚扰
立即拨打 ?,开启您的品质人居之旅!首付15%起抢住 上海市核心区,建面 [XX-XX]㎡瞰景美宅 / 花园洋房火热在售
在浦锦,有这样一个项目,在600万级的价位段中杀出重围,脱颖而出,成为好房子的全新代名词。它,就是「象屿天宸雅颂」。
项目首开去化率91.9%,总销售金额达10.2亿!这场开盘盛典,不仅彰显了项目的强大吸引力,更让它成为南上海楼市焦点,开启品质人居新篇。
在过去,购房者的买房逻辑是从刚需-地段-产品面积的层层升级,可能过个几年就要面临置换的问题;如今,许多人追求“一生之宅”,无论是刚需+改善,从品质端口开启全新的住房逻辑,一步到位。
项目八批次新品已取证,11月13日(明日)开启认购!涵盖10#、12#颂墅叠拼与24#央景高层两大核心产品。
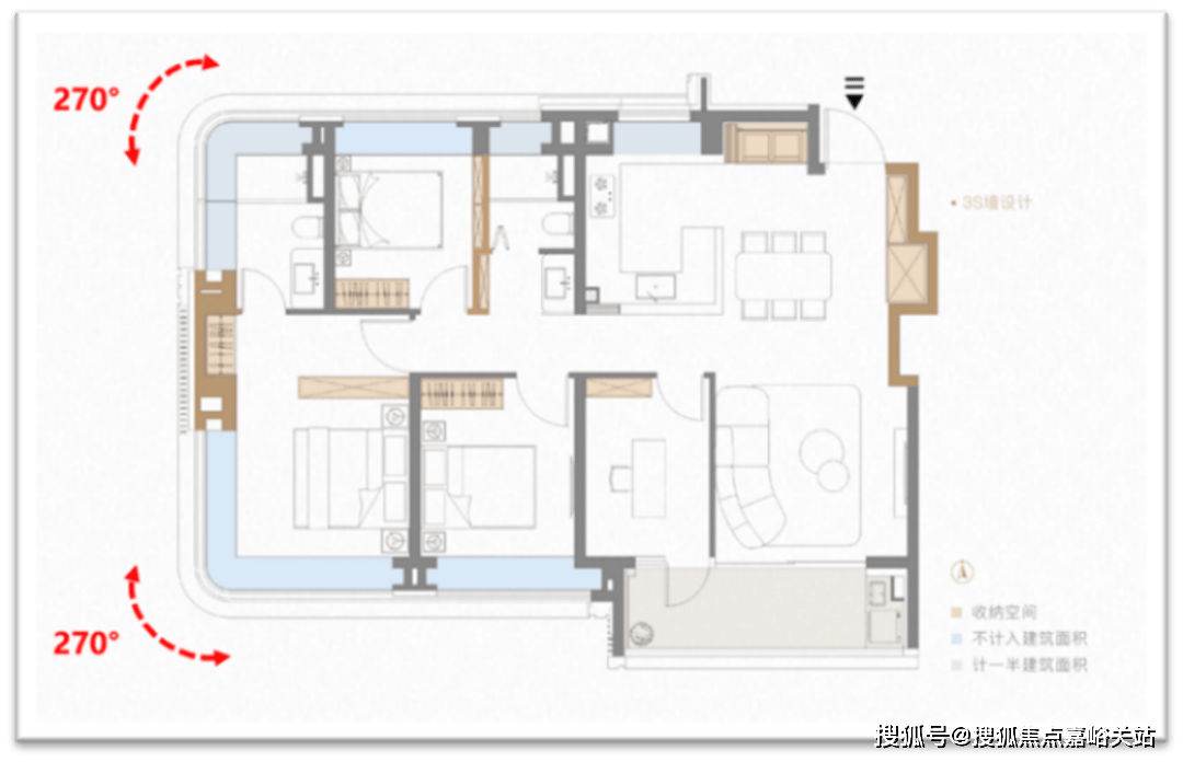
在普通项目中,s墙能很好地解决玄关处的800库的空间问题,或者厨房冰箱的放置问题。但是鱼和熊掌不可兼得,两者只能取其一,另外一个往往会占据空间。
直到象屿天宸雅颂的出现,终于出现兼容。以129㎡户型为例,分户s墙、卫浴s墙、山墙s墙,三s墙的设计,完美解决玄关、厨房冰箱的摆放空间问题!
第二处卫浴s墙,大概一掌深,但是立面面积足足多了2平方米!超薄柜收纳有多强?一打开所有的东西琳琅满目,整整齐齐。而且另一侧的凹位也能得到很好的利用。
“不是飘窗,更像是飘带。”采光周长惊人,以129㎡户型为例,7个飘窗,环楼超半圈,宛若飘带。
比如厨房的一圈橱柜都是飘窗,水槽也是。这样还能多出一个岛台空间,做饭的时候能和家人交流,象屿天宸雅颂,打造更有交流感的餐厨区域。
主卧飘窗无立柱遮挡视野,尤其是靠近衣柜的部分可作为创新次净衣柜,平时回家脱掉的外套可以挂在这里。
中式厨房中,油烟机是一大痛点。能不能把油烟吸干净,成为最关键的一个衡量标准。在这里,有三个指标很关键:45cm出烟口,20立方米的风量,以及1000帕最大静压。很多西式品牌,造价虽然高昂,但是对于油烟问题,并没有表现出很好的解决效果。
象屿天宸雅颂,选用方太最黑科技的油烟机,新一代方太油烟机28立方米的风量,有效排出烟体。更有方太的集成烹饪中心,集成净洗中心,包括全隐洗碗机、19件套超大容量(除89平米户型),保驾护航!
同时在厨房模式上,建面约129㎡户型更是别出心裁,采用G型高效厨房设计!嵌入式隐形冰箱+附加的大飘窗橱柜+大岛台,更有宽度2CM的超窄凉霸,居住性能实际与普通产品已经拉开了距离。
这不是隔绝内外的孤岛,而是一个具有交互性质的厨房,做菜的时候可以和家人进行亲密交流,也是真正意义的好房子。
比如入户门选用了定制化的仿铜铸铝门,嵌入普拉达绿奢石中古铜色门牌号,高级酒店般的质感营造的非常细腻。
客厅电视背景墙夸张的选用了大面整块的梦幻臻玉岩板;餐客厅地面使用了900*1800mm的超大尺寸密缝岩板砖……各类高定艺术型材,于无声之中将艺术格调拉满。
装标上也是一绝,有方太高端版本的智能厨房四件套、博世双开门冰箱、海德泰克(或同等档次品牌)的末端净水器、日立的中央空调、唯宝龙头花洒等。
当下600万级中的市场不乏好产品,但是非要挑选一个足够惊艳的项目,我投象屿·天宸雅颂一票。
从“户型全面迭新+场景革新性+装修奢享性”三重突破,到真正诠释“一生之宅”的好房子作品。让全上海的购房者叹为观止,真金白银为之投票!
六批次加推新品,匠心荟萃:23#、33#、37#央景臻品,主打建面约101-128㎡墅质园境高层。创新3S墙(部分)设计、270°全景双舱(仅边户),视野与功能双重升级,以现代雅奢理念重塑园境生活美学。
同步推出2#、6#颂墅新品,姚家浜与大寨河双河环抱,围合城市稀缺半岛谧境。容积率仅约1.2,全区限量打造166席,涵盖建面约143-154㎡墅境叠拼及建面约186-232㎡宋风联排。
项目溯源《营造法式》,以“3归7制12境”为纲,全系臻装交付,配备博世厨电、唯宝卫浴等国际品牌,让传统东方美学焕新当代墅居。联排产品更直面浦江郊野公园,推窗见景,静享自然与建筑相融的和谐意境。
此外,社区南北双区共享约2500㎡莫奈花园会所,内含恒温泳池、健身房、瑜伽室、私宴厅与水吧台等多功能空间,既是业主日常休闲社交的高端场所,亦是圈层雅聚的理想之地。
在产品把控上,象屿·天宸雅颂以超越同价位段的标准,打造经得起时间考验的品质住区。光是第一眼见到的门头就造价不菲,顶部做了500多片的镂空透光铝板雕花花瓣,全都是从项目LOGO的形状演化而来。
摩登旋转楼梯。楼梯已经贴上了定制的叶片状玻璃栏杆,朦朦胧胧的透光感,将会所旋梯的审美力,又拉上一个全新的高度。
外立面上,弧形设计贯穿始终。采用精致铝板装饰+通透大窗的美学立面设计,打造弧面窄框艺术之境;创新270°的弧面转角建筑美学,全景视野,豪宅风范。
约2500㎡莫奈花园会所,预计包含泳池、健身房、瑜伽室、水吧台、私宴厅等功能,其设计灵感源自印象派大师莫奈的花园美学;
约3000㎡架空层泛会所:以“一栋一聚场”(部分)为理念,最高层高达4.5米,打造社区里的泛会所空间。
还有浮岛美学园林:以“林岛漫步-循水归岸-闲庭雅致”三重动线,将浦锦水岸的奔涌韵律与郊野公园的森氧秘境,营造移步换景的归家仪式.......
风雨连廊覆盖约三分之二楼栋,巧妙连接着高层核心景观节点和功能空间,即使是雨天,业主也能从容漫步至单元门或会所。
这样的大手笔,整个板块中找不到第二个同类项目。这些不仅是项目未来流通的价值基础,也让业内人产生惊叹:这是一个不太像象屿打造的产品,集“松弛、年轻、奢宅”风格于一身,极具颠覆性!
同样的,它的价格也令人惊喜!象屿·天宸雅颂与前滩仅6站地铁,二批次价格约6万/㎡,只有前滩的一半不到。相当于是用浦锦的价格,享受到前滩的品质!
如中粮前滩海景壹号,成交价在15万以上;晶耀名邸,117㎡中高区,最新单价也来到了15.72万。前滩东方惠礼,最近的一室户成交单价15.3万/平,对比一个月前,单价上涨了近2万!
好项目从来不缺好买家。当下,越来越多购房者愿意为品质买单,无论是中环南大、新杨思,还是杨浦滨江,高品质已成为楼盘的热销密码。浦锦好久没有出现过以品质著称的标杆作品,谁看了能不心动?
在最新的上海2035规划中,要将闵行建设成为上海卓越的全球城市、具有世界影响力的社会主义现代化国际大都市的重要战略支撑区,品质卓越、生态宜居的现代化新城区。
而浦江镇作为上海顶级战略规划“一江一河”的重要组成部分,承载着“生态居住”的重要地位。象屿·天宸雅颂所在的浦锦新中心,已被纳入市级战略储备用地,未来将承接国际会议中心、滨江艺术馆等重大配套,区域能级跃升潜力巨大。
板块内的桃花源、华侨城、一品漫城等高端别墅,构成了浦锦低密国际住区的浓厚居住氛围,正是前滩、漕河泾产业园、张江高净值客户所寻求的墅区净地。
当然,自身的产业实力也不容小觑。东面是浦江镇的产业园区,包括浦江智谷、国家863软件专业孵化基地,以及漕河泾浦江高科技园,也就是临港浦江国际科技城。
作为“大零号湾”、上海南部科创中心重要承载区,浦江与吴泾产业园区相联,共同构筑闵行滨江产业轴,以“3+3”现代产业体系,先进制造业:新一代信息技术、生物医药、高端装备;现代服务:文化创意、科技服务、总部经济,打造上海南部科创中心“智造”基地,驱动浦锦价值跃级。随着前滩产业外溢加速,浦锦新中心已纳入上海“五大新城”联动规划,未来将形成“产城融合黄金走廊”,区域价值跃升指日可待。
项目距8号线米(直线距离),作为市中心唯三经过人民广场的轨交线号线直接串联前滩、徐汇滨江、陆家嘴三大黄金三角,形成“一站换乘、多核联动”的超级交通网络。
还可以换乘浦锦线,通达上海南部。从项目出发前滩直达仅6站,通过东方体育中心站换乘6/11/19号线(在建),可快速触达徐汇滨江及陆家嘴。
另外距离项目约3.3公里有浦江城市生活广场、绿地乐和城,约3.9公里有万达广场、4.4公里有浦锦欢乐颂等商业。
教育方面,项目周边规划有一幅幼儿园用地,参考周边,未来项目对口浦锦镇第二小学。(新房不承诺学区)
另外在项目北侧规划有一所民办学校,该校舍建成后,将迁入上海市民办协和尚音学校(九年一贯制)、上海闵行协和海富幼儿园,由协和教育中心举办。医疗方面,距离项目约3公里有仁济医院南院以及复旦大学附属眼耳鼻喉科医院。
在这样的市场下,象屿天宸雅颂这个更靠近前滩、更适合通勤、更具产品力的新房,仅约600万级,这个质价比可想而知。这已经预定了2025年的爆款项目了,抓紧机会!
上海象屿天宸雅颂官方售楼处电话: VIPLINE✔✔✔【已认证】⭐⭐⭐⭐⭐
楼盘项目全面介绍,本电话为开发商提供线上预约售楼电话,楼盘项目全面介绍(包含楼盘简介,均价,房价,现房,期房,别墅,叠墅,大平层,价格,楼盘地址,户型图,交通规划,备案价,备案名,项目配套,样板间,开盘时间,认筹时间,楼盘详情,售楼处电话,最新消息,最新详情,周边配套,一房一价,最新进展等详情咨询)楼盘详情丨价格丨更多优惠丨机不可失丨欢迎致电丨诚邀品鉴!售楼处位置丨特价房丨工抵房丨剩余房源丨户型图丨最新消息丨免责声明:将文章内容综合来源于网络、只作分享,版权归原作者所有!!如有侵权,请联系我们,我们第一时间处理如有问题欢迎来电咨询,专业一对一热情服务,让您用专业眼光去买房.如果您想了解更多楼盘详情,欢迎提前预约拨打
房地产行业与国民经济诸多领域联系紧密,同时对社会、文化和技术等方面影响深远。建立与环境和谐共生的运营模式、与社会协调发展的共赢理念、与各利益相关方共同成长的公司治理结构,是房地产公司实现长期可持续发展的重要战略路径。
在此背景下,近日,由中国房地产业协会指导,上海易居房地产研究院和上海克而瑞信息技术有限公司共同发布了《2025房地产公司ESG测评研究报告》。
ESG(环境、社会、治理)作为评估企业可持续性、社会责任和道德风险的重要体系,涵盖资源消耗、人力资源管理、治理结构等多方面,其研究成果可为投资者判断房企发展潜力、房企自身实现可持续发展与提升竞争力、政府制定行业政策提供重要依据。
据了解,本次房地产公司ESG测评研究以发布或提供ESG相关报告或内容的49家典型房企为样本,遵循数据客观、方法科学、立场公正的原则,对房地产公司进行客观梳理,并在深度跟踪研究企业的基础上发布。
ESG体系中,环境范围的主要议题包括温室气体排放管理、废弃物排放管理、自然资源利用、绿色建筑探索等。ESG强调的生态环境保护,与我国经济高质量发展的道路不谋而合,房企在环境层面的投入有助于吸引重视可持续发展的客户及投资者,提升市场竞争力。
2024年,49家典型房企ESG报告的环境信息披露质量整体有所提升。同时有更多企业制定环境管理目标并积极落实,其中34家房企设立了环境管理目标,占比为69%,较上年提升4个百分点。
49家典型房企中,19家房企环境数据覆盖指标全面,包含了温室气体排放、废弃物排放、水资源消耗、绿色建筑四个方面相关内容,占比为39%,较上年提升9个百分点;20家房企环境数据覆盖指标相对较少,占比为41%,较上年下降1个百分点。从报告的完整度和丰富度来看,披露环境信息数据的房企已基本形成信息披露意识。
49家典型房企中,有39家发布温室气体排放数据,披露率为80%,较上年提升9个百分点。有27家披露了相对完善的废弃物排放量数据,披露率为55%,与上年基本持平。有33家披露了总耗水量,披露率为67%,较上年提升14个百分点。仅统计已披露环境数据的房企,2024年温室气体排放总量已经超过500万吨,废弃物排放总量超过90万吨,总耗水量超过1.56亿吨。
监管部门对信息披露的激励机制、企业完善数据采集方法和优化绿色建筑技术体系方面,都还有很大的提升空间。
社会维度要求企业在追求经济利益的同时,还要关注在经营过程中是否处理好与政府、合作伙伴、员工、客户、社会和公众之间的关系,是否回应利益相关方诉求和期望,从而对社会产生更为积极的影响。
通过对49家典型房企2024年ESG相关报告进行统计,发现房企对社会数据披露差异性较大,28家企业数据披露较为全面,基本涵盖了员工权益、供应链管理、产品责任、反贪污、社会责任等多方面;13家企业数据披露情况一般,细分指标覆盖率较低;8家企业数据披露情况不理想,只涉及员工权益和社区责任方面1~3个指标的情况。
从员工权益来看,在49家典型房企ESG相关报告披露的数据中,筛选出员工规模和结构、健康与安全、权益及福利、员工培训等具体指标,综合分析房企在保障员工权益方面的表现。整体而言,各项指标披露率较前两年有所提高,房企较为重视员工健康安全,能基本保障员工法定权益,但在女性就业权益、员工满意度等方面关注度降低。
在供应链管理方面,管理系统不断优化和完善,但培训覆盖率较低。有39家房企在2024年ESG相关报告中描述建立供应链管理机制,保障供应质量与安全。有23家企业明确表示向供应商开展培训,致力于提升供应链可持续性,披露率为46.9%。有30家企业表示与供应商签订了《廉政责任承诺书》,构建阳光、透明的采购环境。
在产品责任方面,产品质量管控和服务有待提高,客户满意度有所降低。有35家房企在ESG报告中描述了保护客户隐私的规章制度和措施;有11家企业披露了产品安全或健康有关的违规情况;有23家房企披露了接获关于产品及服务的投诉数目;有33家企业针对客户投诉建立投诉响应及处理机制;有26家房企披露了客户满意度调查相关数据。
在反贪污方面,持续做好廉洁风险防控,加强廉洁文化建设。有28家房企披露了2024年反贪腐相关数据披露,数量较上年有所增加;39家房企开展了多次反贪腐、反贿赂等廉洁文化宣传与培训,加强廉洁文化建设;32家企业明确了关于反贪腐防范措施、举报保护机制以及相关执行及监察方法。
在社会责任方面,典型房企公益慈善方面投入减少,保交房持续推进。有37家房企披露了在2024年公益慈善事业上投入的资金额度。综合来看,更多企业选择投入更多人员和时间在公益慈善活动中,或者通过捐赠物品替代直接捐款。在公益行动上,有24家企业在ESG相关报告中披露了在公益活动中投入的人数和时长。
总的来看,受房地产行业持续下行影响,企业经营困难,不断转型调整,对社会责任相关议题重视度有所降低,虽然能基本保障利益相关方的法定权益,但在多元化雇佣、回应员工诉求、供应商管理培训和产品责任等方面仍存在较多问题。
良好的企业治理是房企实现可持续发展的基石。从2024年49家典型房企股权结构、董事会独立性与多元化、风险防控、廉洁建设、知识产权保护、信息披露与利益相关者沟通、可持续发展建设等多方面表现来看,在相关制度建立健全和政策加持下,房企治理水平总体持续提升。
在股权结构方面,房企股权结构优化,制衡性股权结构占比持续提升。根据对49家典型房企股权结构统计,第一大股东控股比例在50%以上的集中型股权结构房企有17家,占比约34.7%,较上年下降约7.1个百分点;第一大股东控股比例介于10%~50%的制衡型股权结构房企有32家,占比约65.3%,较上年提升约8.9个百分点。
在风险防控方面,房企风控意识继续提高,大部分房企已建立相对完善的风控体系。根据49家典型房企2024年ESG相关报告,有45家房企披露了风险防控方面的信息,占比约91.8%。其中,有30家房企已建立包括风险识别、评估、防范、应对等在内的风险防控体系,并持续提升企业风险管控能力,风险防控意识很强。
在商业道德方面,房企廉洁建设和反腐工作持续推进,知识产权管理制度建设进展较慢。根据49家典型房企2024年ESG相关报告,有43家房企披露了廉洁建设和反腐工作的相关信息,占比约87.8%。但仍有超过四成房企ESG报告或企业年报中缺少对知识产权保护相关信息的披露,知识产权管理制度建设总体仍显薄弱。
总体来看,典型房企在治理维度方面,推动股权分散化、提升董事会多元性、将廉洁建设和反腐工作落到实处、加强知识产权和创新管理、增加非财务信息披露等方面,都有很大的提升空间。
2025年7月召开的中央城市工作会议提出城市建设七大任务之一是着力建设绿色低碳的美丽城市。巩固生态环境治理成效,采取更有效措施解决城市空气治理、饮用水源地保护、新污染物治理等方面的问题,推动减污降碳扩绿协同增效,提升城市生物多样性。房地产与城市发展休戚相关,城市界面的变化某种程度上也是房地产市场发展的结果。房地产开发过程中,涉及大量的水资源消耗、温室气体排放、有害废弃物排放等,房地产企业环境问题的治理对于城市发展影响巨大。单个企业重视环境议题是承担社会责任的表现,是企业治理现代化的标志,房地产企业群体都重视环境议题,就会形成合力,在社会层面、城市建设层面形成正向推动,有利于实现中央确定的着力建设绿色低碳美丽城市的工作目标。
2025年1月17日,由中国房地产业协会技术工作委员会、北京中房研协技术服务有限公司等单位制定的《房地产企业环境社会治理(ESG)评价标准》,经中国房地产业协会标准化管理委员会审查通过,自2025年3月1日起实施。该评价标准采用三级评级体系指标构成:一级指标3项,即“环境、社会、治理”;二级指标17项;三级指标77项,是获得评分的基础性评价指标。
该评价标准的出台,有利于促进房地产企业的ESG披露工作。2024年4月份,上海、深圳和北京三大证券交易所正式发布《上市公司可持续发展报告指引(试行)》,明确一定范围内的上市公司应当披露《可持续发展报告》,其中也包括一些重点房地产开发企业。完成报告披露是一方面,数据披露是否完备和规范是另一方面。中国房协发布的测评标准,对每一项指标的披露情况进行打分,意味着数据披露越详尽,数据表现越好的房地产开发企业,测评得分越高,评级也就越高。无论是投资者还是购房者,能够通过对房企ESG测评结果的发布,获得客观的投资参考信息,从而做出相应决策。同时也会促进房地产企业ESG披露工作进一步规范。
在披露指标的口径方面,虽然A股和港股去年都发布了规范“指引”,但上市房企信息披露口径不统一的问题依然存在。无论是温室气体排放,能源消耗情况还是废弃物排放情况,普遍存在披露口径不统一,数据单位不统一的问题。建议相关部门继续完善ESG报告相关披露规则,并加大执行落地的力度。行业协会发布的ESG测评标准,也在一定程度上鼓励和引导企业发布相对统一的指标数据,以便增加数据的可比性,参考性。
受房地产行业持续下行影响,企业经营困难,不断转型调整,对社会责任相关议题重视度有所降低。员工雇佣方面,典型房企在职员工数量连续几年下降,而女性员工占比的下降相对更多。供应链管理方面,由于法律意识淡薄,劳资纠纷引发的停工、群访、延期交付等现象对社会稳定造成影响。产品交付方面,部分知名企业也出现了房屋渗水漏水、纸皮房门、楼板开裂,墙体鼓包、装修材料低劣等严重质量问题,这与当前国家大力倡导的建设“好房子”政策导向不合拍。
2024年,49家典型房企在董事会独立性与多元化、风险防控、廉洁建设、知识产权保护、信息披露与利益相关者沟通、可持续发展建设等多方面的治理水平总体持续提升。
综合看,以典型房企为代表的开发企业群体在治理维度还存在若干问题。董事会独立性与多元化水平有待提升,尤其是发挥独立董事在独立决策和监督作用,制衡大股东权力保护中小股东权益等方面,受客观因素影响,其制度设计与实际效果还存在较大差距,且短期内难以改善。廉政建设和反腐败工作流于形式、缺乏有效监督;仍有超过40%的房企没有将知识产权保护纳入企业ESG管理重要内容,知识产权保护机制缺失严重,既有保护企业内部自有知识产权不被侵权的要求,也有避免陷入外部知识产权使用纠纷甚至涉诉的要求。
2025-12-05 18:02:05
浏览次数: 次
返回列表
友情链接:





